Tipologias

T3

Conclusão da Obra

2013

Local

Cidade do Porto

Booklet do Projeto

Ver Projeto

Casas da Firmeza

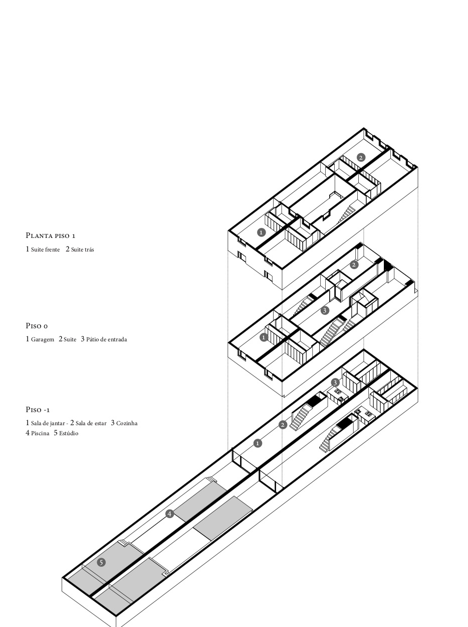
As Casas da Firmeza localizam-se na Rua da Firmeza, numa zona de excelência do centro da cidade, com todas as valências que o centro da cidade dispõe, como serviços, comércio de proximidade, equipamentos vários, etc.

São duas moradias geminadas de Tipologia T3, com pátio comum, por onde se faz o acesso às casas, com jardim e piscina individual nas traseiras.

Com sistemas construtivos e acabamentos de qualidade, dos quais se destaca o excelente comportamento térmico com sistema de isolamento pelo exterior e caixilharia de madeira certificada.

O soalho em Afizélia e as paredes em gesso fino trazem à casa o conforto acolhedor indispensável para uma vivencia com qualidade na Baixa da cidade.